
As a designer/builder, it is natural for me to think about housing where it is desperately needed.

Winnie Henry’s brother as a child with her mother in a photo by Ansel Adams
In coordination with the Native Partnership for Housing (NPH), I have designed a demonstration project for a model dwelling based on the form and orientation of the traditional Navajo Hogan.
The first structure is tentatively being planned for Black Rock, Arizona, near the center of the Navajo Nation for the family of Winnie Henry, a Navajo elder and friend, whose life story was part of the inspiration for the project.

Traditional Hogan at Canyon de Chelly Welcome Center
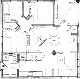
The symmetrical structure is oriented with an entry porch corner facing east, as is traditional for a Navajo Hogan. In addition to respecting cultural traditions, this orientation protects the entry from prevailing winds and places the living area of the house to the south where windows will gather passive solar energy from the winter sun. Generous eaves shade the house in summer, protecting walls and allowing windows to remain open during summer rains.


The square plan with hip roof and central hearth project a simple, pure form sympathetic to traditional structures. “Tree” columns at the entry and inside also pay homage to the regional heritage.
As a prototype designed to be replicated, it has been conceived to fit in comfortably with traditional native structures. It has a metal, standing-seam roof for water collection and exterior finishes of rough-sawn wood or stucco.

The average cost for a new house on the reservation is between $150-$250 per square foot, but this dwelling, through efficient construction techniques and use of innovative materials has been designed to cost about $100 per square foot – a significant savings.
It is hoped that the efficiencies demonstrated will lead to home ownership for more Navajo and other financially struggling communities by providing a model for construction that will encourage home construction as a viable and rewarding business opportunity for the Diné (the Navajo people) and others.

Interior of Traditional Hogan
The Native Partnership for Housing (NPH) is a non-profit whose mission is to “provide innovative and flexible homeownership financing opportunities on or near the Navajo Nation and empower Navajo families with new knowledge, skills and understanding which will enable them to complete real estate transactions.”